ครัวปูน 4 แบบ สวยแกร่งสวยทน
3 ครัวปูน เรียบๆ ดูแลง่าย

ขนาดพื้นที่ : 4 x 4 เมตร
ราคาโดยประมาณ 300,000 บาท
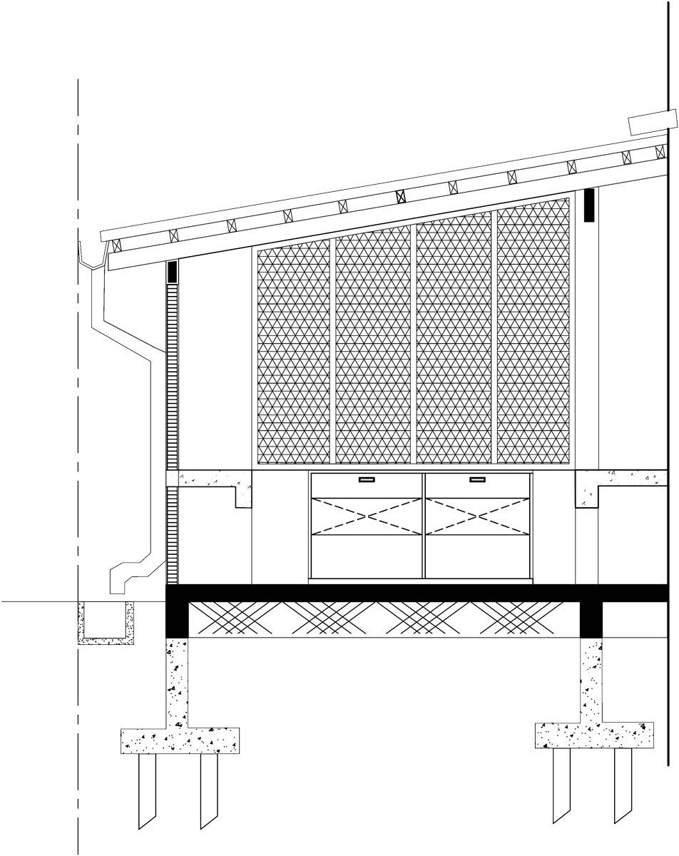
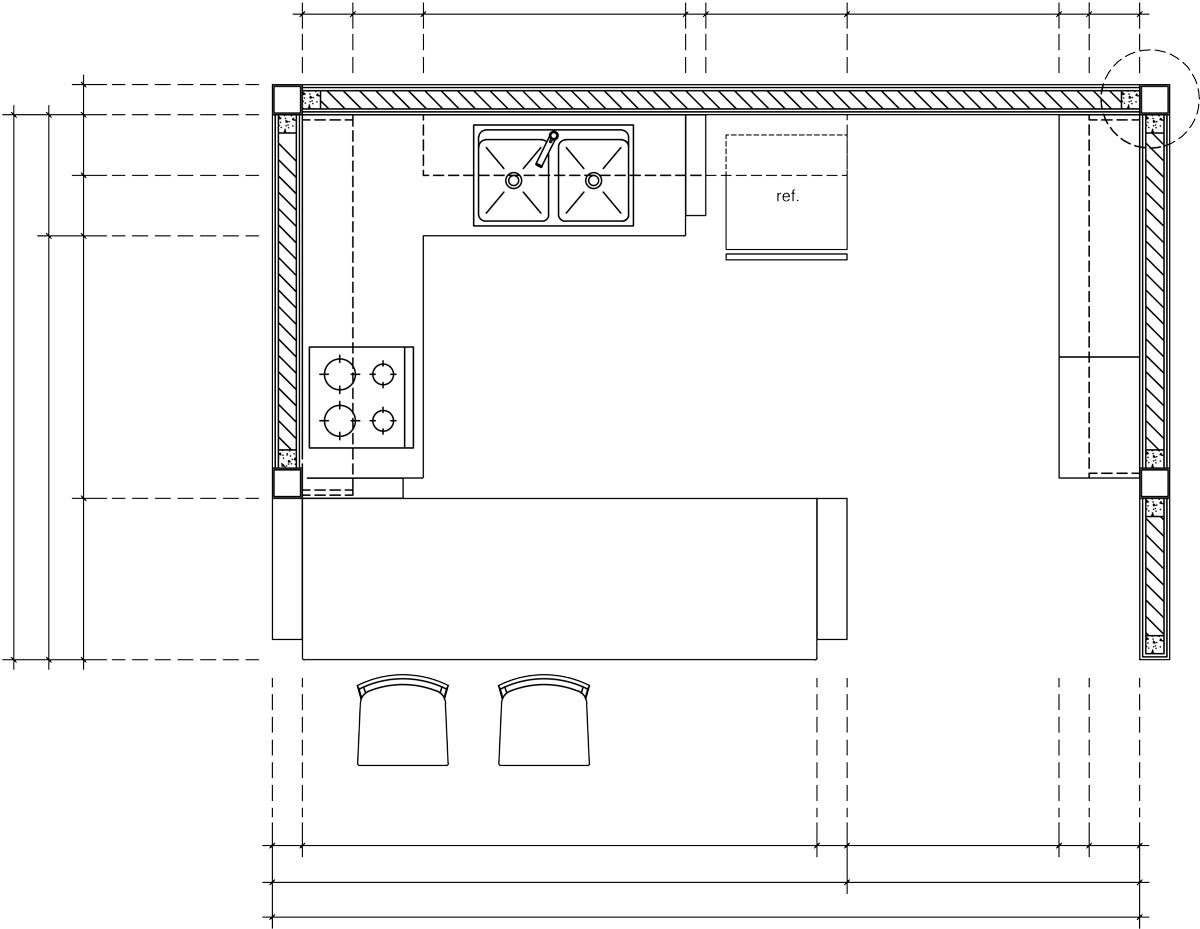
เป็นอีกหนึ่งครัวที่เหมาะกับบ้านทาวน์เฮ้าส์บ้านจัดสรร ดูแลง่ายด้วยวัสดุตกแต่งอย่างแผ่นกระเบื้องกรุผนังที่เช็ดทำความสะอาดง่าย มีแสงธรรมชาติลอดผ่านโดยใช้แผงตะแกรงเหล็กฉีกเป็นส่วนเปิดรับแสง เคาน์เตอร์ปูนเปิดโล่งจึงเหมาะกับเจ้าของบ้านที่มีอุปกรณ์น้อยหรือไม่ค่อยได้ใช้ครัวเท่าใดหนัก

4 เติมครัวปูนให้สวยแบบไทย

ขนาดพื้นที่ : 3 x 3 เมตร
ราคาโดยประมาณ 150,000-200,000 บาท
ตกแต่งครัวปูนให้สวยงามขึ้นในสไตล์ไทยด้วยแผ่นปูนปั้นทาสีขาว จัดเรียงให้เกิดความสวยงาม ตกแต่งผนังด้วยกระเบื้องอิฐเผาสลับสีให้แตกต่าง และเติมด้วยเครื่องจักสาน ให้บรรยากาศดูสบายแบบไทยพื้นบ้านมากขึ้น ครัวไทยนี้เหมาะกับพื้นที่ต่อเติมนอกบ้านหรือส่วนของใต้ถุนบ้านที่มีผนังเปิดโล่ง โดยกั้นส่วนของการใช้งานให้มิดชิดให้ดูเป็นสัดส่วนเหมาะกับการประกอบอาหาร

อ่านต่อ : ออกแบบครัวไทยให้ไร้กลิ่น
อ่านต่อ : 3แบบครัวไทยหลังบ้าน
ติดตามข้อมูลดีๆจากบ้านและสวนได้ที่นี่
เรียบเรียง : JOMM YB.