PerfectKitchen ครัวสวย อเนกประสงค์
เดี๋ยวนี้ครัวไม่ได้เป็นแค่ส่วนทำอาหารเท่านั้นเราสามารถปรับให้ใช้งานได้ อเนกประสงค์ ยิ่งขึ้น ไม่ว่าจะเป็นส่วนรับประทานอาหาร มุมเก็บของแห้ง หรือแม้แต่จัดเตรียมงานปาร์ตี้“ดีไซน์ไอเดีย” ฉบับนี้ขอพูดถึงครัวที่เหมาะกับการใช้ชีวิตของคนรุ่นใหม่ นอกจากมีฟังก์ชันการใช้งานที่ครบครัน สะดวก และปลอดภัยแล้วการออกแบบให้มีมุมสวนครัวเล็กๆ เพื่อหยิบวัตถุดิบสดๆมาปรุงอาหารได้เลยก็เป็นไอเดียที่น่าสนใจและน่าลองทำตาม ทำให้ครัวกลายเป็นหัวใจของบ้านที่คุณจะใช้งานได้เต็มประสิทธิภาพยิ่งขึ้น
ครัวถูกใจ ต้องใช้งานได้ดี
ครัวที่ดีไม่ใช่แค่สวย แต่ต้องใช้งานได้อย่างที่ตั้งใจ ดังนั้นก่อนออกแบบครัว ลองลำดับหัวข้อความต้องการ เช่น อยากได้พื้นที่เตรียมอาหารใหญ่ๆ หรืออยากมีพื้นที่สำหรับเก็บของแห้งด้วย จากนั้นบอกความต้องการเหล่านี้กับผู้ออกแบบ หรือหากออกแบบเองก็จะได้ทราบว่าครบตามที่ต้องการหรือยัง โดยไม่ลืมคำนึงถึงปัจจัยสำคัญเหล่านี้ เช่น
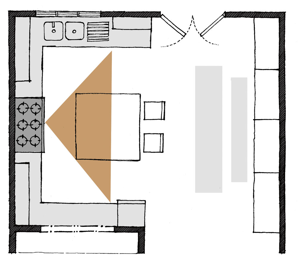
สามเหลี่ยมการใช้งาน
พื้นที่สัญจรในครัวเป็นสิ่งสำคัญ ก่อนออกแบบครัวควรจำรูปสามเหลี่ยมการใช้งานให้ขึ้นใจจะช่วยให้ใช้งานครัวได้สะดวกขึ้น มุมของสามเหลี่ยมจะตรงกับตู้เย็น อ่างล้างจานและเตา ทั้งสามสิ่งนี้แทนค่าการใช้งานของส่วนเก็บ ส่วนล้างและส่วนปรุง ข้อดีของสามเหลี่ยมนี้ยังช่วยลดสิ่งที่ไม่จำเป็นออกไปจากครัว จึงใช้พื้นที่ได้คุ้มค่าที่สุด นอกจากนี้ขนาดของพื้นที่และรูปแบบครัวก็ควรจะสอดคล้องกันด้วย เพื่อการใช้งานที่สะดวกยิ่งขึ้น
ชุดครัวรูปแบบต่างๆเช่น รูปตัวยู (U) รูปตัวจี (G) รูปตัวแอล (L) รูปตัวไอ (I) และรูปตัวไอแบบมีไอส์แลนด์ แต่ละรูปแบบจะมีสามเหลี่ยมการใช้งานต่างกันหากมีพื้นที่แนะนำให้ปรับครัวเป็นห้องอเนกประสงค์ที่มีส่วนเก็บของมากขึ้น มีโต๊ะยาวที่ปรับใช้งานในยามปาร์ตี้ และเป็นส่วนรับประทานอาหารได้ด้วย
ความลึกของเคาน์เตอร์ ระยะมาตรฐานอยู่ที่ 60 เซนติเมตร แต่อาจปรับให้พอดีตามความถนัดในการยืนของผู้ใช้งานได้
ความสูงของเคาน์เตอร์ ระยะมาตรฐานอยู่ที่ 85-110 เซนติเมตร แต่อาจปรับระยะให้เข้ากับความสูงของผู้ใช้งานได้ เช่น เมื่อยกศอกในระดับใช้งานบนเคาน์เตอร์แล้วต้องอยู่ในระยะที่ไม่ต่ำหรือสูงเกินไป จะได้ไม่ปวดหลังหากต้องยืนทำครัวนานๆ
ตู้สูงและตู้เก็บของ ระยะความสูงจากท็อปเคาน์เตอร์ถึงตู้อยู่ที่ 40-50 เซนติเมตร อาจปรับได้ตามความสูงของผู้ใช้งาน ควรให้อยู่ในระยะพอดีกับมือจับตู้ ไม่ควรให้ผู้ใช้งานต้องเหยียดสุดแขนหรือยืนเขย่งเพื่อหยิบของ เพราะอาจเกิดอุบัติเหตุได้
แสงและการระบายอากาศ
ตำแหน่งครัวที่เหมาะสมควรอยู่ทางทิศตะวันตกหรือตะวันตกเฉียงใต้เพราะได้แสงสว่างในช่วงกลางวัน ภายในครัวควรมีช่องแสงที่เปิดรับแสงแดดและลม เพื่อช่วยในการระบายอากาศ ทั้งยังเป็นปัจจัยสำคัญที่ทำให้เราต่อยอดไปจัดสวนครัวที่สามารถหยิบวัตถุดิบในการปรุงได้ใกล้มือเนื่องจากเป็นพืชที่ต้องการแสงแดดจัด สำหรับพื้นที่ปลูกควรอยู่ในส่วนเตรียมส่วนเก็บ หรือส่วนล้าง ไม่ควรอยู่ใกล้กับส่วนปรุงเด็ดขาดเพราะวัสดุปลูกหรือน้ำรดต้นไม้อาจกระเด็นตกในอาหารที่ปรุงได้ และหากส่วนเตรียมมีพื้นที่มากพอ เช่นเป็นไอส์แลนด์หรือโต๊ะยาว อาจแบ่งมาวางกระบะสวนครัวด้วยก็ได้










