บ้านอิฐบล็อก สไตล์โมเดิร์นดีไซน์เรียบง่ายอยู่สบาย เด่นด้วยการออกแบบพื้นที่ในบ้านเเละหลังบ้านเชื่อมโยงถึงกันแบบเปิดโล่ง ทั้งเเสงเเละลมจึงสามารถพัดผ่านเข้ามาสู่ตัวบ้านได้เต็มที่ ไม่ปิดล้อมจนดูน่าร้อนอบอ้าว เหมาะอย่างยิ่งกับบ้านพักอาศัยที่อยู่ในเขตร้อน
Maracana House คือบ้านพักกึ่งสตูดิโอ ตั้งอยู่ในเขตชานเมืองของนครเซาเปาโล ประเทศบราซิล  ซึ่งเป็นผลงานการออกแบบโดย Terra e Tuma โดดเด่นด้วยการเลือกใช้วัสดุธรรมดา ๆ ที่เราคุ้นเคยอย่าง คอนกรีต กระจก และอิฐบล็อก โดยมีโจทย์มาจากความต้องการความเรียบง่าย ซึ่งเเสดงให้เห็นว่าต้นทุนที่ต่ำของการเลือกใช้วัสดุ ไม่ใช่อุปสรรคในการสร้างสรรค์งานสถาปัตยกรรมดี ๆ ที่เอื้อต่อการอยู่อาศัย เเต่สิ่งที่ท้าทายกว่านั้นคือความสมดุลระหว่างคุณภาพกับความต้องการ ขั้นตอนการก่อสร้างและตกแต่งจึงสำคัญ ในการช่วยให้งานออกแบบบ้านหลังนี้มีเอกลักษณ์ บ้านอิฐบล็อก


เห็นได้จากฟาซาดด้านหน้าเมื่อมองเข้ามาที่ตัวบ้าน จะพบว่าฝั่งหนึ่งกรุด้วยกระจกใสสูงตั้งเเต่พื้นจรดเพดาน เเละอีกด้านเป็นอิฐบล็อกแบบปิดทึบเพื่อความเป็นส่วนตัว ป้องกันสายตาจากผู้คนที่เดินผ่านไปมา โดยมีการติดตั้งภาพกราฟิกลายขาว-ดำขนาดใหญ่เต็มผนัง ผลงานของ Alexandre Mancini ที่อิงมาจาก The Dot and the Line : A Romance in Lower Mathematics ตกแต่งล้อไปกับลายของผนังอิฐบล็อก ช่วยสร้างบรรยากาศสนุก ๆ ให้บ้านสีเทามีดีไซน์ไม่เรียบนิ่งจนเกินไป โดยมีประตูทางเข้าอยู่ด้านหลังฟาซาดลายกราฟิกนี้เอง
ทันทีที่ก้าวเข้ามาด้านใน บรรยากาศจะดูโปร่งโล่งเป็นพิเศษ เพื่อทำให้เห็นถึงความเป็นไปได้ใหม่ ๆ เเม้ว่าบ้านจะมีขนาดพื้นที่ไม่มาก เเต่ด้วยการใช้เส้นนอนเเละเส้นตั้ง กลับสามารถช่วยให้การออกแบบบ้านมีสเปซที่ดูกว้างขวางขึ้นได้ ไม่ปิดทึบ หรือร้อนอบอ้าว เหมาะสมกับสภาพภูมิอากาศเเบบเขตร้อน
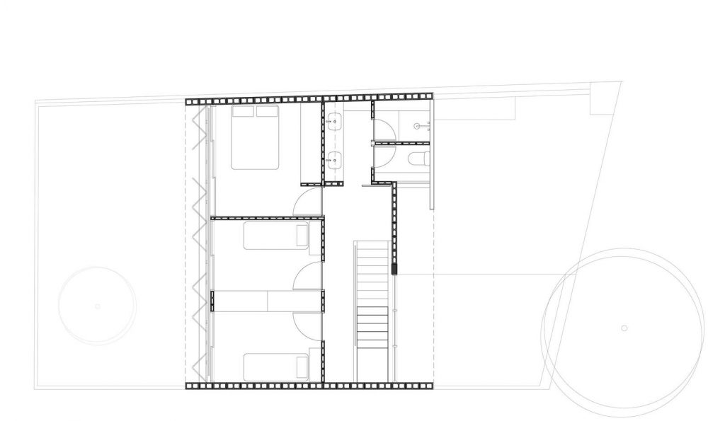
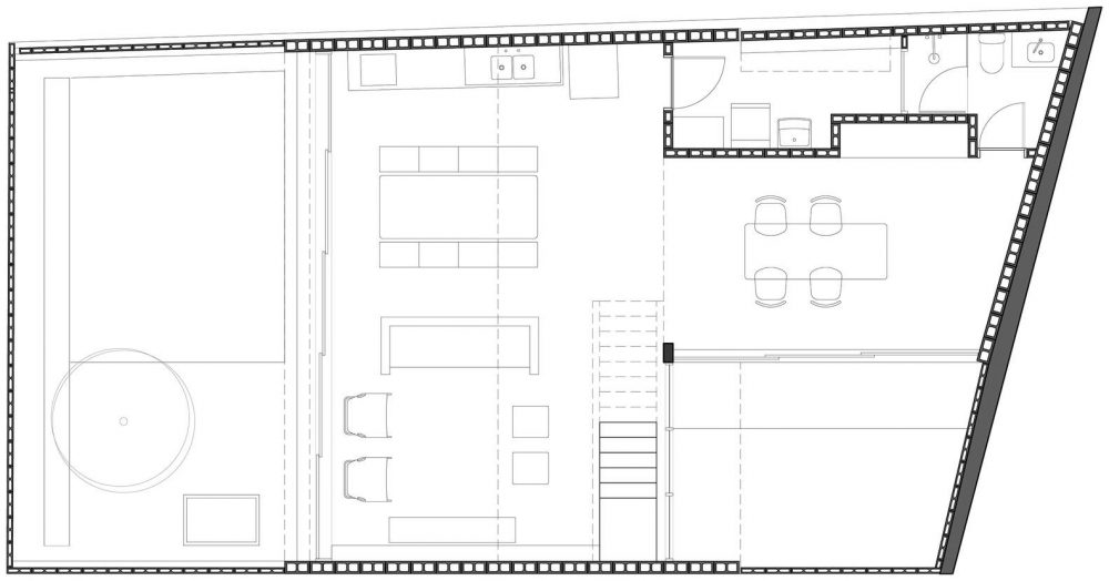
ร่วมกับการออกแบบผนังกระจกใสขนาดใหญ่โดยเฉพาะพื้นที่หลังบ้านที่เลื่อนเปิดออกได้จนสุดทั้งชั้นล่างเเละชั้นลอยสำหรับเป็นมุมนั่งเล่นพักผ่อน มุมทำงาน เเละครัว ที่ลมเเละอากาศสามารถหมุนเวียนถ่ายเทได้ดี รับวิวสวนหย่อมเล็ก ๆ ได้เต็มที่ ส่วนชั้น 2 เป็นห้องนอนที่ต้องการความเป็นส่วนตัวสูง เชื่อมต่อเเต่ละชั้นด้วยบันไดคอนกรีตที่มีราวกันตกทำจากเหล็กทำสีดำขึงด้วยเชือกตาข่าย ก่อนพาขึ้นไปยังชั้นดาดฟ้าของบ้าน
จากตัวอย่างของบ้านหลังนี้ ทำให้เข้าใจว่าเมื่อเข้ามาในบ้านเเล้ว ไม่จำเป็นว่านั่นคือการหนีหายเข้าไปอยู่ในกล่องเเคบ ๆ เเต่เราสามารถออกแบบบ้านให้เปิดโล่ง เพื่อรับรู้สภาพเเวดล้อมรอบ ๆ ตัวได้ตลอดเวลา โดยมีข้อดีตามมาในเเง่ของการช่วยให้บ้านเย็นสบาย ลดการใช้พลังงาน เหมาะกับคนที่กำลังมองหาเรเฟอเรนซ์เพื่อสร้างบ้าน เเละอยากประหยัดงบประมาณในการก่อสร้าง ด้วยการเลือกใช้วัสดุที่เรียบง่ายดูสามัญ เเต่ผลลัพธ์ที่ได้นั้นกลับไม่ธรรมดาเลย!
ออกแบบ : Terra e Tuma
ภาพ : Pedro Kok
เรียบเรียง : Phattaraphon